Cottage for sale in Ronkis, Italy

  • Deal Type
  • For Sell
  • Тype
  • House
  • Area
  • 530 m2
  • Floors
  • -
  • Rooms
  • 5
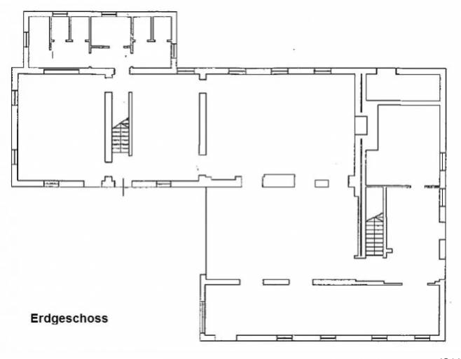
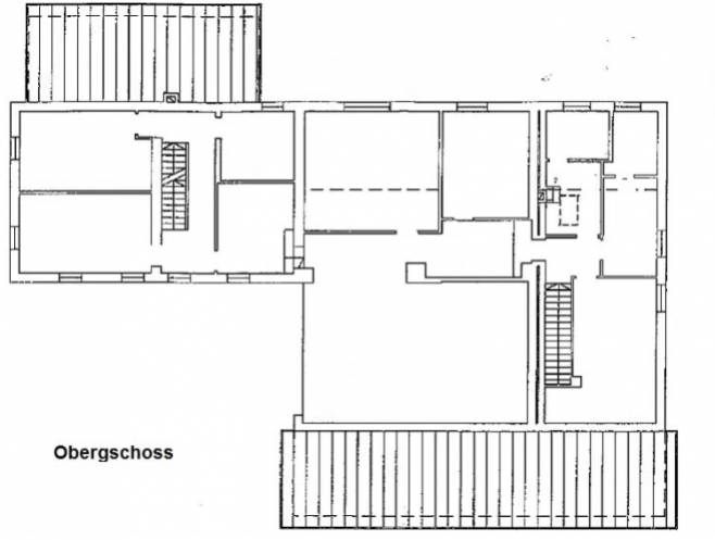
For sale cottage in Ronkis, a commune in Italy, is located in the region of Friuli-Venezia Giulia, in the province of Udine. Italian charm with a great history is the former hunting lodge of the last doge of Venice where modern and stylish repairs were made. If you believe the story, Ernest Hemingway was here even in 2007. The facility was skillfully renovated and equipped with modern equipment, within these walls. The ground floor became a stylish Bavarian restaurant, adapted and built into a modern kitchen. This can best be used for special occasions. Every gourmet here beats heart faster. A significant part of the land, which makes the plot is additionally valuable. Operating expenses are included. The property is located a few kilometers from the Lignano highway and about 15 minutes from the sea. Cities in the vicinity: Udine ~ 50 km, Trieste ~ 80km, Venice ~ 90km. Number of floors in the building 3. The total area of ​​the house is 530 sq.m. The plot has 18000 m². Number of rooms 10, 5 bedrooms, bathrooms 3, 5 separate toilets. Central heating, stove heating.
Price 990 000 EUR
  • Location:
Country:Italy
State:Friuli-Venezia Giulia
City:Udine
Property Type:House
  • Characteristics
Rooms:5
Living Area (m2):530

990 000 €

1 175 186 $
90 712 146 ₽

On the map

Other properties of this seller