Building for commercial use for Sale

  • Deal Type
  • For Sell
  • Тype
  • Commercial
  • Area
  • 2625 m2
  • Floors
  • 4
  • Rooms
  • -
Building for commercial use for Sale
In Khamovniki, Moscow
Total area: 2 625.8 m2
including:
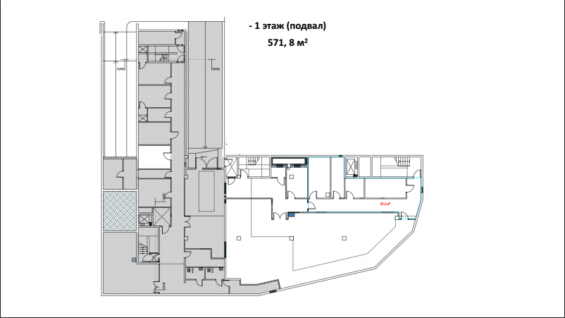
-1 floor- 571.8 m2
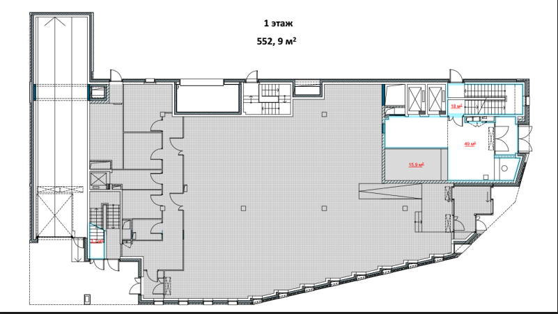
1st floor- 552.9 m2
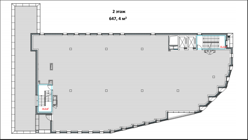
2nd floor- 647.4 m2
3rd floor- 621.6 m2
4th floor - 65 m2 + maintained roof 550 m2
Layout: open
Room condition: shell & core
Ceiling height: 1st floor-3,5m; 2,3 floors-3,2 m
Power supply: 1200 kW
Load on floors: 400 kg / m2
Lifts: 3 elevators by ThissenKrupp,
Parking: 40 parking spaces in the underground parking
POWER SUPPLY: 1200 kW
LOADING LOAD: 400 kg / m2
LIFTS: 3 lifts by Thissen Krupp
  • Location:
Country:Russia
State:Moskva
City:Moscow
Property Type:Commercial
  • Characteristics
Total Area (m2):2625

22 140 000 €

25 790 826 $
1 976 908 359 ₽

On the map

Other properties of this seller