House for sell

  • Deal Type
  • For Sell
  • Тype
  • For One
  • Area
  • 171 m2
  • Floors
  • 2
  • Rooms
  • 4
Продается 2 этажный 171 кв.м кирпиччый жилой в региональном парке пеки Нерис, 20м от реки Нерис, од города Тракай 11 км. 
Удивительное место, рядом озера, курортный город Тракай. Также до центра Вильнюса 25,5км.

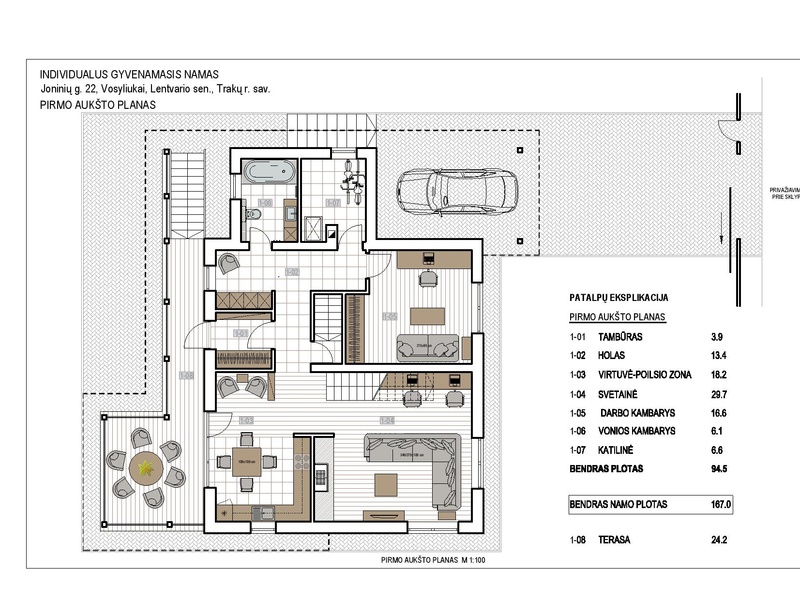
ПЛАН ДОМА:
- подвал (38.24 квадратных метров)
1 Этаж (89.53 кв.м.)
- гостиная с кухней;
- рабочая комната;
- туалет и ванная вместе;
- котел;
- Холл;
- тамбур.
2 Этаж (43.21 квадратных метров)
- 2 спальные комнаты;
- Сан. узел;
- просторная терраса.
ДОМ
- фибо блоки;
- крыша покрыта и утеплена;
- забетонирована терраса и входная лестница.
- завершенчость дома 59%. До окончания дома примерно нужно 20-30т. евро.
- мощность электропривода 10 кВт.
- водяная скважина.
Участок:
- 7.16 aра земли;
- проект дома разработан в соответствии с рельефом участка.
РАСПОЛОЖЕНИЕ:
- дом в живописном месте недалеко от Нерис регионального парка, участок на склоне реки Нерис, рядом с лесом.
- 300м до асфальтированной улицы.
- 400м до остановки автобуса.
- Расстояние - до Рыкантай 4.5 км,до Тракай 11км, до Грикишкес 12,9 км, до центра города Вильнюс 25,5 км.
  • Location:
Country:Lithuania
State:Vilnius County
City:Grigiškės
Property Type:For One
Possible Bargaining:Yes
  • Characteristics
Year of Construction:2013
Rooms:4
Sleeping:3
Number of toilets:2
Living Area (m2):171
Total Area (m2):171
Land plot (m2):716
  • Facilities
Bathroom:Tub, Shower, WC, Has Window
Other Facilities:Pantry
Equipment:Garden, Balcony/Terrace
Heating:Electrical, Underfloor, Wood heating
Window View:Lake View, Garden view

65 000 €

77 159 $
5 955 848 ₽

On the map

Other properties of this seller