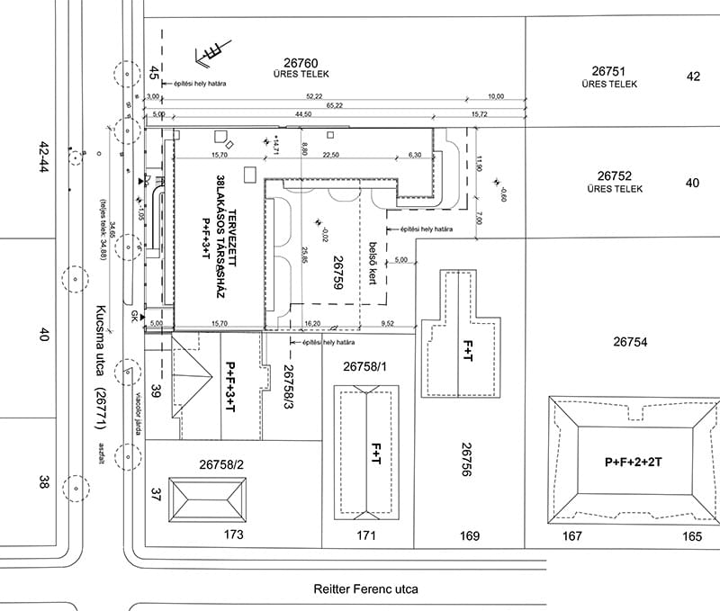
A building plot in Budapest’s green belt is for sale in Kucsma street, District 13.

  • Deal Type
  • For Sell
  • Тype
  • Plot
  • Area
  • 1987 m2
  • Floors
  • -
  • Rooms
  • -
Plot in residential area for sale

A building plot in Budapest’s green belt is for sale in Kucsma street, District 13. The area can be accessed easily with public transportation. The vacant land is 1987 square meters, free from all encumbrances. A legitimate building permit was issued by the local government for a 38 apartment condominium. Implementation documents (complete architect/static/electric/engineering design) are already accepted. The project also has a sales plan and a webpage with live domain. The memorandum has been submitted to the government. The construction can be started at any time. The total size of marketable flats is 2520 square meters, the total size of marketable terraces is 688 square meters, total size of marketable storage units is 180 square meters and the underground car park has 38 marketable parking spaces. Running water, electricity and drain is already installed and gas installment is requested.

For more information and details please contact:

Kiss András
+36705226855
kiss.andras.karoly@outlook.com
  • Location:
Country:Hungary
City:Budapest
Property Type:Plot
  • Characteristics
Total Area (m2):1987

1 000 000 €

1 152 920 $
94 008 657 ₽

On the map

Other properties of this seller